摘要:为了提高港口自动化堆场仿真准确性和可信度,采用离散事件系统仿真方法对港口集装箱堆场作业流程进行仿真优化。根据港口实际作业数据,分别搭建基于AnyLogic软件和FlexTerm软件的港口堆场作业系统仿真模型,模拟港口堆场作业流程,分析堆场仿真系统的有效性和仿真模型的功能性。通过堆场仿真结果与实际堆场作业数据的对比发现,2款仿真模型均能满足港口堆场作业系统的仿真需求,且通过调整仿真系统输入条件还能有效提升仿真效果。通过AnyLogic软件与FlexTerm软件的功能对比发现,FlexTerm软件的专业性更强,AnyLogic软件的可操作性更好,在对港口堆场作业系统进行仿真分析时,应根据实际需求做出最优选择。
引言:港口集装箱吞吐量的急速增长和堆场作业自动化程度的提高加剧了集装箱堆场管理的复杂性。针对港口集装箱堆场作业系统这一大型离散事件系统,传统解析法已经无法满足港口堆场作业系统的仿真需求。但系统仿真方法在集装箱堆场领域的应用越来越受到重视。在自动化港口系统仿真领域,通常使用AnyLogic、FlexTerm等仿真软件,搭建港口作业系统的仿真模型,对港口作业流程进行可视化仿真分析。针对港口整体作业系统,通常利用仿真软件搭建涵盖港口整体作业系统的集成仿真平台,借助仿真平台实现港口规划设计和管理策略的优化。针对港口堆场作业系统,通常采用堆场优化设计方法与系统仿真方法相结合的方式,模拟分析集装箱堆场布局最优方案,协助进行堆场布局规划。此外,基于AnyLogic、FlexTerm等仿真软件搭建堆场作业系统仿真模型,对场桥调度方案、堆场作业状态等进行仿真分析,并根据分析结果给出最优的堆场作业决策方案,从而提高港口作业效率。本文采用离散事件系统仿真方法,依托港口集装箱堆场作业流程,分别搭建基于AnyLogic软件和FlexTerm软件的港口堆场作业系统仿真模型,通过仿真分析,实现港口集装箱堆场堆放策略、堆场布局、运输规划等的验证优化,为港口管理决策提供参考依据。
问题描述;为减少集装箱船在港停留时间,提高集装箱船作业效率,某港口积极推进集装箱堆场作业自动化建设。在自动化建设过程中,为提高港口堆场作业管理水平,决定搭建集装箱堆场作业系统仿真模型,旨在通过仿真模型实现对港口堆场作业流程的优化。在仿真过程中,为了保证模型能准确表达堆场实际作业状态,仿真前要先对模型进行核验,检查仿真模型的系统结构、管理策略、控制方法、设备参数等相关输入信息与实际作业情况相一致。此外,为了保证仿真分析结果准确可靠,仿真时要对2种仿真模型的运行结果进行详细记录,并结合实际自动化堆场的数据,对比2个仿真模型的各项运行数据,分析在相同输入条件下堆场系统仿真输出结果与实际堆场系统作业结果的异同。通过对港口堆场作业流程的仿真研究,分别验证仿真模型的准确性、仿真结果的有效性和仿真软件的功能性,为港口堆场作业的管理决策提供参考依据。
堆场仿真参数:2.1 堆场布局参数港口装卸作业区布置2个10万吨级泊位,每个泊位配备3台岸桥,总计6台岸桥,编号分别为Crane 1、Crane 2、Crane 3、Crane 4、Crane 5、Crane 6。港口堆场作业区规划有4个箱区,编号分别为E01、E02、E03、E04。在堆场布置方面,E01箱区为近海侧箱区,E04箱区为近陆侧箱区,E01、E02箱区为出口箱区,E03、E04箱区为进口箱区。在港口堆场作业区规划中,将E01箱区设置为9列5层箱区,E02、E03、E04箱区设置为12排5层箱区,每个箱区配备有2台场桥协同作业,总计8台场桥,编号分别为A01、A02、A03、A04、A05、A06、A07、A08。2.2 堆场设备参数港口堆场作业设备主要包括场桥、岸桥、集卡等,上述设备的运行参数即为堆场仿真系统的输入参数。根据实际集装箱堆场作业数据,对作业设备进行参数设置。岸桥运行参数见表1,集卡运行参数见表2,场桥运行参数见表3。


2.3 船舶泊位参数根据港口提供的实际船舶和泊位规格参数,建立船舶精确模型和简化模型,具体模型按照现场作业需求和仿真系统实际运行情况进行选择。为了对港口堆场作业进行有效的仿真分析,在设置泊位参数时,优先考虑实际作业过程中最大泊位通过能力。按照单周作业计划进行工况设定,单周计划作业船舶12艘,单艘船舶装箱量为420~ 530 TEU,卸箱量为420~530 TEU。单周船舶计划见图1。

2.4 箱区编码信息集装箱堆场采用9位编码规则,其中:前3位表示箱区位置编码;中间3位表示箱区贝位编码;第7位和第8位表示贝位中的排数编码;第9位表示所在层数。箱区位置编码:自海侧往陆侧方向依次为E01、E02、E03、E04。箱区贝位编码:采用自左向右(面海时)方式进行编排,奇数编码001、003、……,用于堆放20英尺集装箱,偶数编码002、004、……,用于堆放40英尺集装箱。箱区贝位排数编码:集卡装卸区的贝位自海侧往陆侧方向共1排,编码L1。集卡交换区层高编码:“层”是集装箱在集卡上的高度,用1位数字表示。集卡装卸区编码:由集卡交换区号、位、排和层高9位编码(XXX-XXX-XX-X)组成。例如:E01-001-01-1表示第E01箱区的第001贝第1排第1层,依此类推。
3仿真模型搭建3.1 堆场仿真系统架构根据港口堆场作业特点和堆场系统功能,设计搭建港口堆场仿真系统架构。该架构主要包括UI界面、数据库、系统实时仿真演示、ECS控制器、设备仿真、地图信息、集装箱等部分,主要用于实现数据交互、模型设计、任务调度管理、仿真测试、结果演示等功能。堆场仿真系统架构见图2。

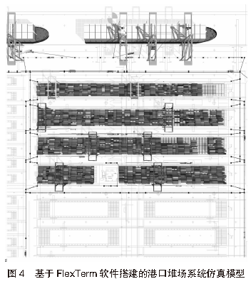
3.2 堆场仿真系统模型根据堆场仿真系统架构,以某港口自动化堆场作业的实际运行环境为基础,分别搭建基于AnyLogic软件和FlexTerm软件的港口自动化堆场系统仿真模型。基于AnyLogic软件搭建的港口堆场系统仿真模型见图3,基于FlexTerm软件搭建的港口堆场系统仿真模型见图4。


在利用仿真软件进行港口堆场作业仿真分析时,应先根据港口提供的基本作业参数、环境参数搭建港区堆场系统仿真模型,然后通过UI界面输入场桥、岸桥和集卡等主要设备的运行控制参数,系统根据运行参数仿真模拟港口自动化堆场作业流程。在仿真流程中,仿真系统需要先建立数据连接,然后再驱动仿真系统运行。对于AnyLogic仿真模型,需要先通过码头操作系统(TOS)和设备控制系统(ECS)的交互过程创建本地数据库,为数据库操作模块提供长期稳定的数据连接,由此来实现与本地数据库或第三方系统数据库的连接,驱动整个仿真系统的实时运行。对于FlexTerm仿真模型,只允许数据以Excel表格的形式接入仿真系统中,由外部数据来驱动仿真系统的运行。在仿真系统模型运行后,集装箱堆场作业流程的仿真结果会通过2D或3D演示画面实时显示,并且能够实时展示自动化装卸过程的关键KPI,以可视化的形式协助港口企业对集装箱堆场的规划布局、设备管理、控制策略等进行优化。
4仿真结果分析利用港口自动化堆场相关数据,分别对基于AnyLogic软件和FlexTerm软件的堆场系统仿真模型的仿真结果进行对比分析。4.1 场桥利用率对比在集装箱堆场作业中,场桥是提高堆场作业效率的关键因素。合理分析场桥利用率对提高堆场作业效率、减少船舶在港停泊时间尤为重要。根据港口提供的堆场作业参数和实际堆场作业的场桥利用情况,对堆场内场桥使用情况进行仿真对比分析。AnyLogic仿真模型的场桥利用率见表4,FlexTerm仿真模型的场桥利用率见表5,2种仿真模型的场桥利用率对比见表6。


经综合分析发现,无论是单一场桥利用率还是平均场桥利用率,AnyLogic仿真模型的数据结果都普遍高于FlexTerm仿真模型的数据结果。通过分析堆场作业系统仿真流程发现,上述差异是由2种仿真模型的作业指令生成模式不同导致的。在相同的作业时段内,AnyLogic仿真模型的作业指令生成的作业数量要高于FlexTerm仿真模型的作业指令生成的作业数量,从而导致AnyLogic仿真模型的场桥利用率高于FlexTerm仿真模型的场桥利用率。根据港口提供的数据,全年该港口自动化堆场的场桥利用率在40%~60%。基于AnyLogic仿真模型和FlexTerm仿真模型仿真得到的平均场桥利用率分别为42.4%、35.7%。显然,与FlexTerm仿真模型的仿真结果相比,AnyLogic仿真模型的仿真结果同实际作业数据的统计结果更接近。究其原因,这是由2款仿真模型的集装箱装卸作业指令的生成模式不同导致的。对堆场作业系统仿真流程分析发现:在AnyLogic仿真模型中,集装箱装卸作业指令是根据港口历史数据,借助算法计算生成的,比较接近港口的实际作业数据;在FlexTerm仿真模型中,集装箱装卸作业指令是利用软件自带作业计划模块,通过配置船期、堆场计划等参数自动生成的,与港口实际作业数据之间存在一定的差距。4.2 堆场使用情况对比为了合理规划堆场空间资源,根据港口提供的船期、堆场计划等参数,对港口堆场的使用情况进行仿真对比分析。AnyLogic仿真模型与FlexTerm仿真模型堆场通过能力对比见表7。由表7可知,在相同输入条件下,AnyLogic仿真模型和FlexTerm仿真模型仿真模拟得到的堆场利用情况和堆场通过能力基本一致。但由于泊位船舶计划较为宽松,船期密度小于实际船期数据,AnyLogic仿真模型和FlexTerm仿真模型的堆场通过箱量分别为632 300 TEU和632 863 TEU,均小于港口全年实际堆场通过箱量724 272 TEU。

通过仿真分析结果与实际作业数据的对比发现,仿真分析结果与港口实际运行数据差距较小,表明AnyLogic仿真模型和FlexTerm仿真模型都能准确可靠地模拟港口实际堆场作业情况,能够满足港口堆场仿真需求,并有助于提高港口堆场仿真的准确度和可信度。此外,通过分析堆场仿真作业流程还发现,通过调整堆场仿真系统的输入条件能提升AnyLogic仿真模型和FlexTerm仿真模型的仿真效果,其中:通过调整输入条件对应的关键参数来提升AnyLogic仿真模型的仿真效果;通过修改输入条件中作业计划模块的船期、堆场计划等相关配置来提升FlexTerm仿真模型的仿真效果。4.3 软件功能对比回顾整个堆场仿真作业流程发现,2款软件在功能应用方面存在一定差异。根据仿真作业流程和仿真分析结果,对2款软件的功能进行对比分析,AnyLogic软件与FlexTerm软件的功能对比见表8。

在港口自动化堆场仿真领域,FlexTerm软件的专业性更强。FlexTerm软件作为港口码头仿真专用软件,具备完整的港口码头仿真模型库;AnyLogic软件作为通用型仿真软件,具备涵盖多个应用领域的模型库,但涉及港口码头的模型库较为简陋。FlexTerm软件具备完善的集装箱装卸策略和港口码头专业数据统计分析功能;AnyLogic软件只具备通用的数据统计分析功能,专业性相对较差。在港口自动化堆场仿真领域,AnyLogic软件的可操作性更好。首先,AnyLogic软件支持多方法建模,而FlexTerm软件目前仅支持离散建模方法。其次,AnyLogic软件支持多种数据驱动方式,且能与外部系统软件进行交互,而FlexTerm软件仅支持数据以Excel表格的形式导入,且无法对接外部软件系统。最后,AnyLogic软件的可开发性强,借助Java模块可以设计开发特殊模型或编辑自定义模型库文件,而FlexTerm软件仅支持扩展开发港口装卸和调度运输等仿真模块,无法进行模型开发设计,可操作性相对较差。
来源 | 港口科技公众号